空き家・空き地の詳細情報 【掲載情報の最終確認は、当事者間の契約の中で行ってください】
| 登録番号 | 02975 この物件をお気に入りへ |
| 物件分類 | 空き家(居住用) | 区分 | 賃貸 |
| 現況 | 空家 |
| 引き渡し状況 | 即時 |
| 希望価格 | 70,000円/月額 |
| 敷金 | 70,000円 | 礼金 | --- |
| 共益費/管理費 | --- | 修繕積立金 | --- |
| 住宅保険 | --- |
| 地域 | 十勝総合振興局 管内 |
| 住所 | 上川郡 清水町 北4条西7丁目8番地1 |
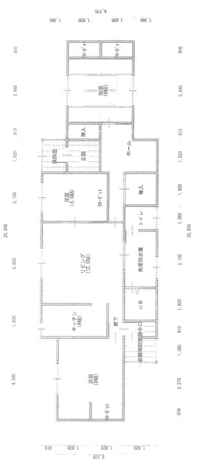
| 間取り | --- |
| 土地面積 | 726㎡(219.6坪) |
| 建物面積 | 1F:99.45㎡(30.1坪) |
| 構造 | 木造 |
| 建築年 | --- |
| 増改築 | --- |
| リフォーム | あり(キッチン、ボイラー、風呂) |
| 敷地接続道路 | あり | 登記簿謄本 | あり |
| 法令等による制限 | --- |
| 耐震補強 | なし | 利用状況 | --- |
| 地目 | 雑種地 |
| 都市計画 | 非線引区域 | 用途地域 | 第一種中高層住居専用 |
| 物件アピール | |
| 備考 | 特記事項はありません。 |
| 留意事項 | |
| 電気 | 引込済 | ガス | プロパンガス |
| 風呂 | --- | 水道 | 上水道 |
| 下水道 | 下水道 | トイレ | 水洗(洋式) |
| 洗面化粧台 | あり(シャワー付) | 物置 | あり |
| 駐車場 | あり | 庭 | --- |
| 名称等 | 問合せ窓口:翌檜不動産 電話番号:0155-23-3003
|
| 利用希望者の要件 |
・購入又は賃借する空き家に居住又は定期的に滞在し、定住や商業活動その他地域の活性化に寄与しようとする者
・購入又は賃借する空き地に住宅等を建築し 、定住や商業活動その他地域の活性化に寄与しようとする者
・購入又は賃借する空き家等の転売及び転貸を目的としない者
|